PolyPro mit MultiMix-Anbau
Volumen: 32 m3 bis 114 m3
Den MultiMix gibt es auch als Kombinationssytem mit dem Abschiebecontainer PolyPro. Hier erreicht man ein Volumen von bis zu 114 m3.
Dieses System beinhaltet alle Vorteile das MultiMix Solo sowie des PolyPro.
| Multimix/ Anbau | Multimix Mega/ Anbau | |
|---|---|---|
| Höhe innen | 2.000 mm | 2.800 mm |
| Wiegefüße | 2 | 2 |
| Gewicht | 3 t | 4 t |
| Volumen | ca. 9 m³ | ca. 14 m³ |
- Extrem wartungsarmer und langlebiger Edelstahlbehälter
- Langlebige Vertikalmischschnecke mit Zerkleinerungsfunktion inklusive acht Messer und verstellbarer Gegenschneidevorrichtung
- Höchste Gasausbeute durch gleichmäßige Dosierung
- Leistungsstarkes Planetengetriebe
- Wartungsarm durch stabile Bauweise mit verschleißarmem Stirnradgetriebemotor
- Schnelle und einfache Montage
- Für alle Substrate geeignet; auch schwierige Substrate wie langfaseriges Landschaftspflegegras oder Mist mit ungeschnittenem Stroh
- Auswurföffnung manuell mit Spindel verstellbar; optional hydraulisch verstellbar
PolyPro
Volumen: 23 m3 bis 100 m3
Feststoffannahmecontainer zur Vorhaltung und Zuführung von unterschiedlichen Substraten und Feststoffen wie z. B. Mais-, Gras-, Ganzpflanzensilage (GPS), Mist, Hackschnitzel und viele weitere Substrate in der Kunststoffausführung. Durch die hervorragenden Gleiteigenschaften des Kunststoffes ist die Beschickung selbst schwieriger Substrate wie. z.B. Mist mit hohem und langem Strohanteil, Ladewagengras oder Rundballen dauerhaft gewährleistet.
Idealer Vorratsbehälter in Verbindung mit dem Fliegl Dosiersystem »MultiMix« und »Rondomat«
-
Großes Fassungsvermögen
-
Hohe Flexibilität und Anpassungsfähigkeit
-
Wasser-, Alkohol-, Säureund Laugenbeständigkeit
-
UV-Strahlungs- und Temperaturbeständigkeit von -85 °C bis + 90 °C
-
Höchste Gasausbeute durch gleichmäßige und zuverlässige Dosierung per Abschiebetechnik
-
Energieeffizient, ab 0,15 kW Kraftbedarf pro m.
-
Wartungsarm und robust, durch stabile Bauweise - Abschiebetechnik seit Jahren in der Landwirtschaft bewährt
-
Abschiebecontainer aus bruchsicherem Polyethylen-Kunststoff
-
Boden und Seitenwände aus Polyethylen sind durch eine spezielle Schweißtechnik miteinander verbunden
-
Stabiles äußeres Stahlrahmengestell mit Abstellfüßen
-
Hintere Auffangrinne für Flüssigkeiten mit Anschlussmöglichkeit für Ablauf ⌀ 100 mm bzw. 125 mm
Bewährte Abschiebevorrichtung
-
Schiebeboden: substratberührende Teile und Grundrahmen in V2A
-
Schiebewand: substratberührende Teile in V2A, Grundrahmen in Stahl, lackiert
-
Schiebewand mit wechselbaren seitlichen und unteren PU-Abdichtungen
-
Schiebeboden mit wechselbarer Kunststoffführung als Verschleißmaterial
-
Sicher und robust durch wenig bewegliche Teile
-
Sickersaftdicht
-
Wirtschaftlich, da geringer Stromverbrauch, wartungs- und verschleißarm, hohe Durchsatzmengen
-
PolyPro aus korrosionsbeständigem Polyethylen
-
Alle substratberührenden Teile vom Schiebeboden und Dosieraggregat sind aus Edelstahl gefertigt. Die Messer bestehen aus Spezialstahl
| PolyPro23 PolyPro23 SE* | PolyPro30 | PolyPro44 PolyPro44 SE* | PolyPro57 SE* | PolyPro60 | PolyPro74 Mega PolyPro74 SE* Mega | PolyPro100 Mega PolyPro100 SE* Mega | |
|---|---|---|---|---|---|---|---|
| Länge außen | 6.000 mm | 7.500 mm | 9.500 mm | 11.500 mm | 11.500 mm | 11.500 mm | 15.400 mm |
| Breite außen | 3.020 mm | 3.020 mm | 3.020 mm | 3.020 mm | 3.020 mm | 3.020 mm | 3.020 mm |
| Höhe außen | 2.900 mm | 2.900 mm | 2.900 mm | 2.900 mm | 3.200 mm | 3.700 mm | 3.700 mm |
| Länge innen | 3.800 mm | 5.300 mm | 7.300 mm | 9.300 mm | 9.300 mm | 9.300 mm | 12.300 mm |
| Breite innen | 2.850 mm | 2.850 mm | 2.850 mm | 2.850 mm | 2.850 mm | 2.850 mm | 2.850 mm |
| Höhe innen | 2.000 mm | 2.000 mm | 2.000 mm | 2.000 mm | 2.200 mm | 2.800 mm | 2.800 mm |
| Wiegefüße PolyPro/ MultiMix-Anbau | 2/ 2 | 2/ 2 | 4/ 2 | 6/ 2 | 6/ 2 | 6/ 2 | 6/ 2 |
| Leergewicht PolyPro/ MultiMix-Anbau | 5,5 t/ 3 t | 7 t / 3 t | 7,5 t/ 3 t | 10,5 t/ 3 t | 10,8 t/ 3 t | 11,2 t/ 4 t | 14,5 t/ 4 t |
| Füllgewicht PolyPro/ MultiMix-Anbau | 13 t/ 4 t | 17 t/ 4 t | 24 t/ 4 t | 31 t/ 4 t | 33 t/ 4 t | 41 t/ 7 t | 55 t/ 7 t |
| Volumen PolyPro/ MultiMix-Anbau | ca. 23 m³/ 9 m³ | ca. 30 m³/ 9 m³ | ca. 44 m³/ 9 m³ | ca. 57 m³/ 9 m³ | ca. 60 m³/ 9 m³ | ca. 74 m³/ 14 m³ | ca. 100 m³/ 14 m³ |
*SE = Standard Edition (PolyPro mit MultiMix Anbau)
Technische Zeichnungen
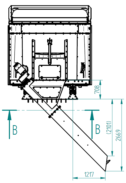
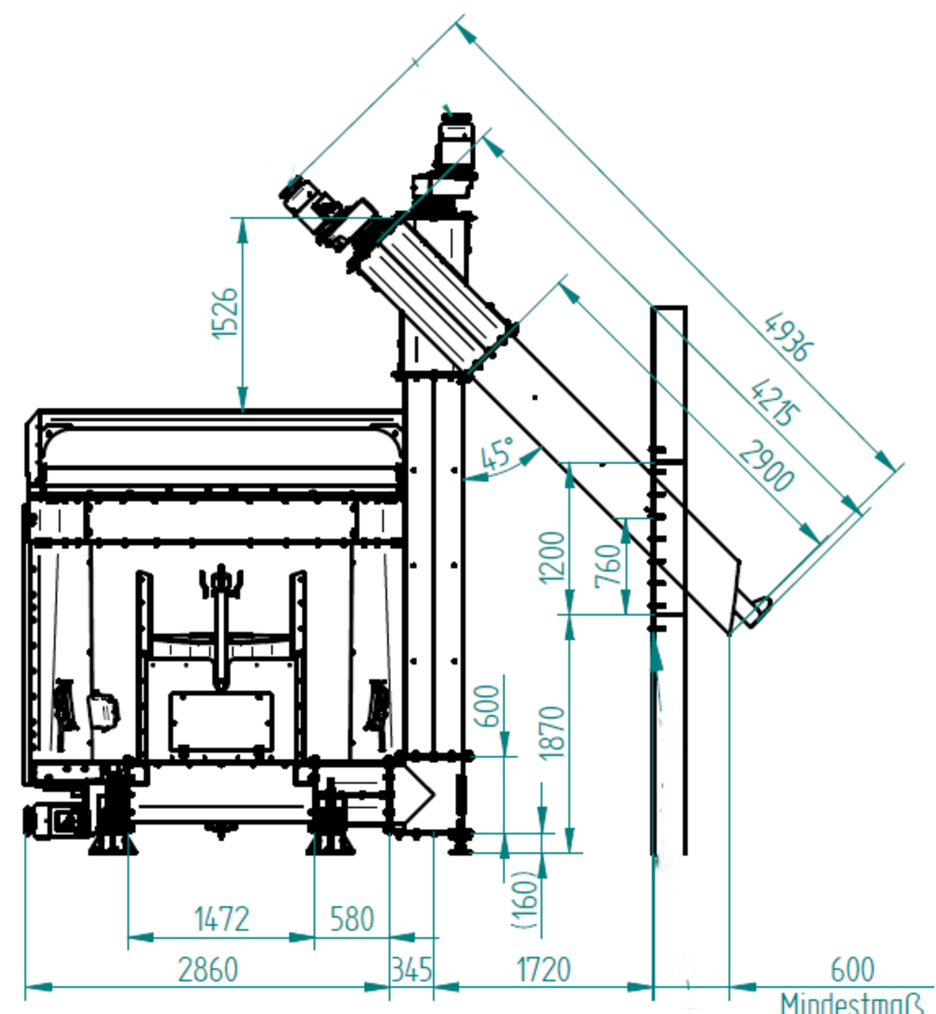
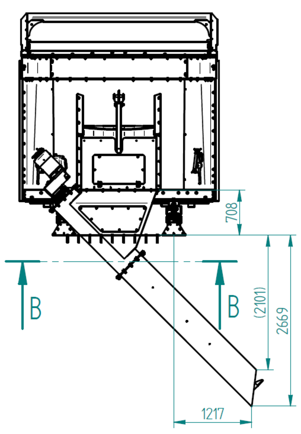
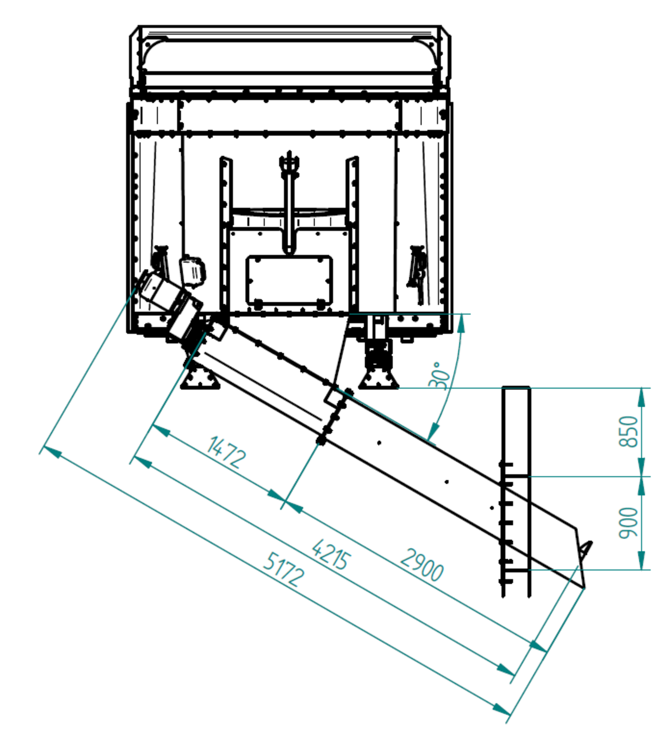
PolyPro44 mit MultiMix-Anbau
Nachdem die Förderschnecke gestartet ist, wird der Stirnradgetriebemotor des Planetengetriebes aktiviert. Dieser Motor treibt das Austragsschwert oder die Vertikalmischschnecke im Rondomat oder Multimix an. Die Schnecke dreht sich, bis entweder die gewünschte Menge an Material dosiert wurde oder die Belastung der Förderschnecke zu hoch wird. In diesem Fall pausiert der Stirnradgetriebemotor des Planetengetriebes. Sobald die Förderschnecke wieder frei läuft, setzt der Motor seinen Betrieb fort.
Die Stromaufnahme des Stirnradgetriebemotors wird kontinuierlich überwacht. Überschreitet sie einen einstellbaren Grenzwert (X Ampere), bleibt der Schiebeboden inaktiv, und die Magnetspulen bleiben in Ruhestellung. Liegt die Stromaufnahme unter diesem Wert, wird der Schiebeboden aktiviert, da davon ausgegangen wird, dass der Rondomat oder Multimix nur gering befüllt ist und weiteres Material nachgeschoben werden muss. In diesem Fall wird das Magnetventil zur Steuerung des Vorschiebens angesteuert.
Es wird empfohlen, das Vorschieben in Intervallen durchzuführen: 4 bis 8 Sekunden Vorschub, gefolgt von einer Pause von 8 bis 80 Sekunden. Dieser Zyklus wird so lange wiederholt, bis die Stromaufnahme den eingestellten Grenzwert X Ampere überschreitet, woraufhin das Magnetventil des Hydraulikaggregats pausiert. Sobald Material aus dem Rondomat oder Multimix entnommen wurde und der Antrieb wieder leichter läuft, setzt das System den Intervallbetrieb fort.
Wenn die Abschiebeeinheit ihre Arbeit beendet hat und den Endpunkt erreicht, sendet ein Magnetsensor ein Signal. Daraufhin fährt die Schiebewand für etwa 10 Sekunden (einstellbar) zurück und wieder vor, um sicherzustellen, dass auch der letzte Rest des Materials abgeschoben wird. Dies wird standardmäßig dreimal wiederholt (dieser Wert kann angepasst werden), um die vollständige Nutzung des Container-Volumens zu gewährleisten. Dieser Vorgang wird als „Entleerhub“ bezeichnet, um sicherzustellen, dass keine Rückstände an der Schiebeeinheit haften bleiben, die später eintrocknen oder verderben könnten.
Sobald der Abschiebecontainer nach drei Entleerungen bis zum Mindestgewicht entleert hat, fährt er automatisch nach vorne, wo ein weiterer Magnetsensor das Elektroventil abschaltet und das Hydraulikaggregat stoppt.
Aktoren:
- Zwei Magnetspulen am Hydraulikaggregat, 24 V
- Das Hydraulikaggregat
- Der Antrieb des Rondomaten (8,3 kW) bzw. des MultiMix (24,2 kW)
Sensoren:
- Zwei Magnetschalter, jeweils vorne und hinten in der Seitenwand des Containers
- Messung der Stromaufnahme des Stirnradgetriebemotors
- Gewichtserfassung der Waage in Kilogramm (kg)
